Commercial Building in Camden-175 US Hwy 158 W
Commercial Building For Sale
$ 150,000.00
- Property ID: 5059
- Date added: 09/18/25
- Post Updated: 2025-10-01 15:15:37
- Bathrooms: 2
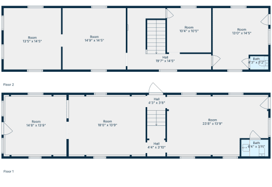
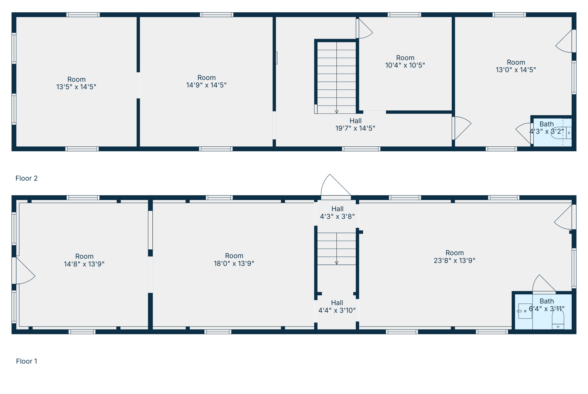
- Floors: 2
- Status: Active
- Area: 1837 sq ft
- Lot size: 8337 sq ft
- Year built: 1850
Description
Step into the charm of historic Camden with this two-story commercial building, originally built in 1850 and offering 1,837 square feet of versatile space. Featuring two restrooms and 63 feet of prime road frontage, the property is ideally positioned in the heart of Camden with excellent visibility. Zoned Village Commercial, it supports a wide range of uses, from retail to office, boutique, or service-based business. Previously utilized as retail, the building blends historic character with modern opportunity, making it a standout investment for those looking to establish a presence on Camden’s main corridor.
Owner financing is available for qualifying buyers with a 20% down payment.
View on map / Neighborhood
Features
- in the heart of Camden NC
- Minutes from City Limits of Elizabeth City
- Natural Gas Available
- Centrally located
- Excellent visibility & exposure
- Zoned Commercial
- Freestanding Building
Agent

This style property is located in Camden is currently Commercial Building For Sale and has been listed on The Rich Company. This property is listed at $ 150,000.00. It has 2 baths bathrooms, and is 1837 sq ft. The property was built in 1850 year.