4,427 sf Commercial building for lease (Suite M)-1141 N Road Street, Elizabeth City (Northeastern Professional Center)
- Property ID: 5122
- Date added: 09/29/25
- Post Updated: 2025-09-30 12:00:58
- Bathrooms: 3
- Floors: 1
- Status: Active
- Area: 4427 sq ft
- Year built: 1992
Description
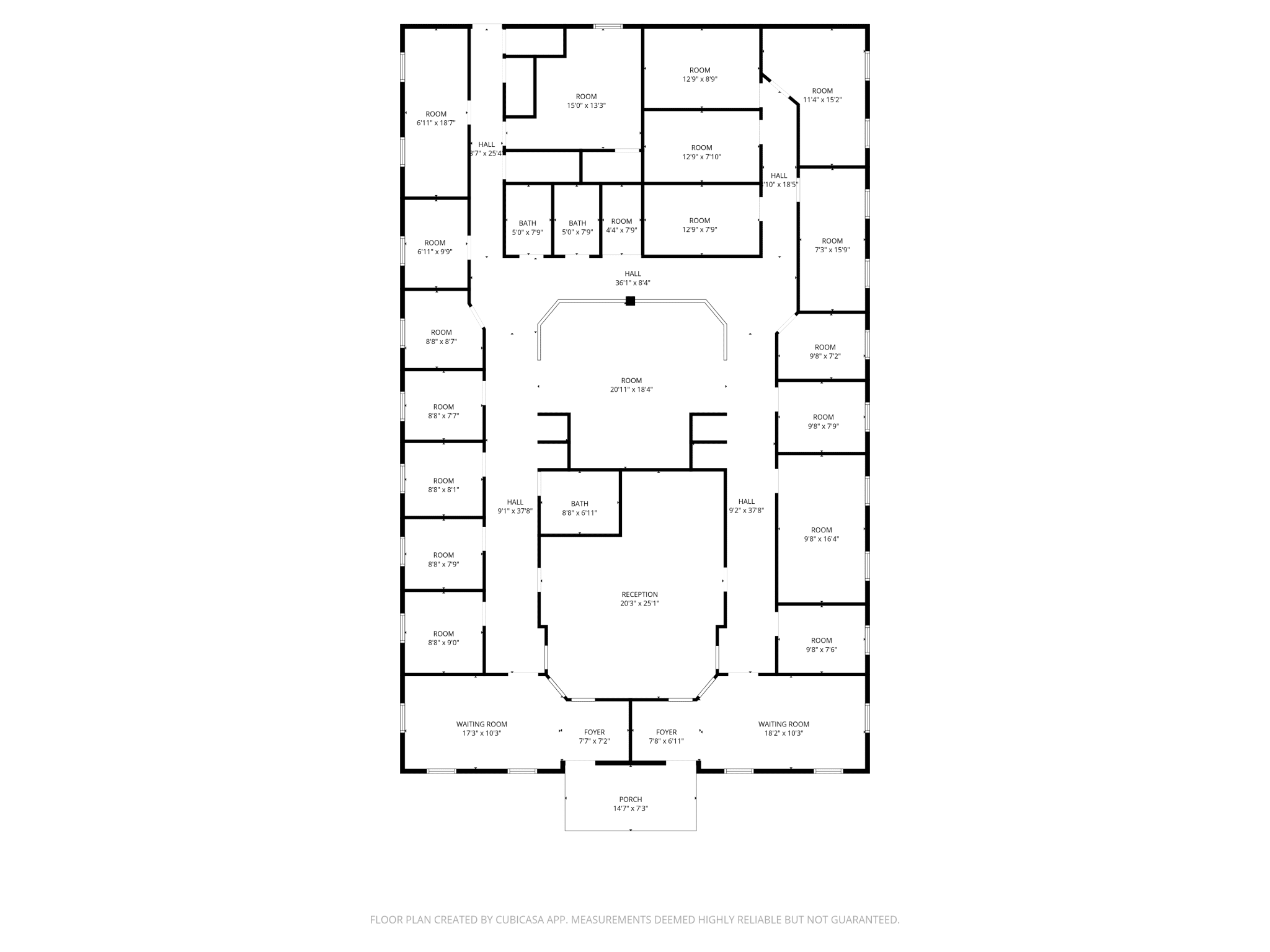
Suite M offers 4,427 sf of commercial space in the Northeastern Professional Center for $4,427/month. Previously used as a medical office, this suite is well-equipped with 12 exam rooms, 3 restrooms, 4 offices, a nurse’s station, 2 lobbies, a front desk, and a break room. The layout is designed to support medical or professional use but can be adapted to meet a variety of tenant needs. The property provides 147 shared parking spaces, offering plenty of convenience for staff and visitors. Zoned General Business, the space is ideal for medical, retail, or service-based businesses.
View on map / Neighborhood
Features
- Great location for Medical
- Zoned General Business
- Ample parking
- Zoning allows for majority of commercial uses
- kitchenette
- Freestanding Building
- Private Parking
Agent

This style property is located in Elizabeth City is currently Commercial Space For Lease and has been listed on The Rich Company. This property is listed at $ 4,427.00. It has 3 baths bathrooms, and is 4427 sq ft. The property was built in 1992 year.